聯系我們
18903178757
- 地址:
- 河北省泊頭市富鎮開發區
- 傳真:
- 0317-8041117
- Q Q:
- 28505225
PL單機除塵器
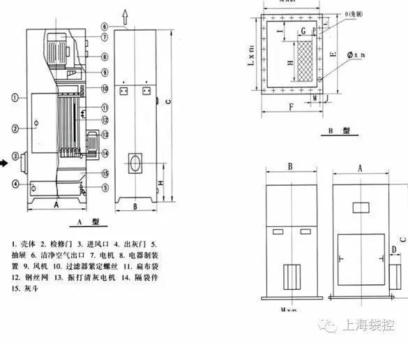
PL單機除塵器是根據國外引進的除塵設備進行改進研制成功的新穎產品,是一種體積小,除塵效率高的就地除塵機組。該除塵器基本結構由風機、過濾器和集塵器三個部件組成,各部件都安裝在一個立式框架內,鋼板殼體,外形美觀,結構科學,運行可靠,使用方便。

PL單機除塵器是一種小型除塵設備,主要用于庫頂,庫底,倉頂和輸送設備的揚塵點的收塵。其結構簡單緊湊,安裝容易,維修方便等。
PL單機除塵器是根據國外引進的除塵設備進行改進研制成功的新穎產品,是一種體積小,除塵效率高的就地除塵機組。該除塵器基本結構由風機、過濾器和集塵器三個部件組成,各部件都安裝在一個立式框架內,鋼板殼體,外形美觀,結構科學,運行可靠,使用方便。
本單機除塵器廣泛用于鑄造工業、陶瓷工業、玻璃工業以及耐火材料、水泥建材、砂輪制造、化工制品、機械加工等行業的除塵。
PL-B型系列單機除塵設備技術性能 | |
| 型號規格項 目PL-800/BPL-1100/BPL-1600/BPL-2200/B風量M3/H800110016002200資用力MMH2O>80>85>85>100過濾面積M2471012風機電機功率KW1.11.52.23清灰電機功率KW0.180.180.180.18過濾風速M/MiN3.332.622.663.05 凈化效率%>99.5>99.5>99.5>99.5 噪聲db(A)<75<75<75<75 外形尺寸A×B×CMM530×520×1040700×580×1100740×580×1240720×660×1330底法蘭寸E×FMM598×588768×648826×666806×746 重 量KG280330470600 注:1.貨用壓力即機真空度,系指機器可供使用的壓力,是機器進氣口實測靜壓的絕對值。 PL-B型系列單機除塵設備技術性能 型號規格項 目PL-2700/BPL-3200/BPL-4500/BPL-6000/B風量M3/H2700320045006000-8000資用壓力MMH2O>120>100>100>150-120過濾面積M213.615.321.525風機電機功率KW445.57.5清灰電機功率KW0.180.180.370.55過濾風速M/MiN3.303.483.403.33-4.5凈化效率%>99.5>99.5>99.5>99.5 噪聲db(A)<75<75<75<80外形尺 寸A×B×CMM760×680×1380790×700×1420900×800×15501200×900×1720底法蘭尺寸E×FMM864×784894×8041004×9051102×1002 重 量KG5206158151190注:1.貨用壓力即機真空度,系指機器可供使用的壓力,是機器進氣口實測靜壓的絕對值。 PL-A型系列單機除塵設備技術性能 型號規格 項 目PL-800/APL-1100/APL-1600/APL-2200/A風量M3/H800110016002200資用壓力MMH2O808585100過濾面積M2471012進氣口尺寸mmΦ120Φ140Φ150Φ200進氣口中心離底距H318345418433風機電機功率KW1.11.52.23清灰電機功率KW0.180.180.180.18過濾風速M/MiN3.332.622.663.05凈化效率%>99>99>99>99灰箱容積(1)20304040 噪聲dB(A)75757575 外形尺寸A×B×Cmm530×520×1300700×580×1400740×580×1913720×630×1696重量Kg400550600730PL-A型系列單機除塵設備技術性能 型號規格 項 目PL-2700/APL-3200/APL-4500/APL-6000/A風量M3/H2700320045006000-8000資用壓力MMH2O120100100150-120過濾面積M213.615.321.530進氣口尺寸mm200×250200×300200×350220×450進氣口中心離底距H4584784781295風機電機功率KW445.57.5清灰電機功率KW0.180.180.180.55過濾風速M/MiN3.303.483.493.33×4.5凈化效率%>99>99>9999.5灰箱容積(1)555570105 噪聲dB(A)<75<75<75<80 外形尺寸A×B×Cmm760×680×1798790×700×1888 900800×2028120×900 重 量Kg85098010401200 |






上一篇:UF單機袋式除塵器
下一篇:淺析常見的幾種單機除塵器的特點

