聯系我們
18903178757
- 地址:
- 河北省泊頭市富鎮開發區
- 傳真:
- 0317-8041117
- Q Q:
- 28505225
MC型脈沖袋式除塵器
MC型脈沖袋式除塵器的形式有側開門結構的 MC型脈沖袋式除塵器和上揭蓋結構的MC-n型脈沖 袋式除塵器。
(1) MC型脈沖袋式除塵器
MC型脈沖袋式除塵器為側開門結構,規格有24? 120袋,處理氣量自2160?20800m3/h。其中MC-24A 型帶灰斗,MC-24B型不帶灰斗6脈沖控制儀有氣動、 電動和機械控制三種。其技術性能見表6-33,裝配形式
和主要尺寸見圖&23?圖6-26及表6-34和表6-35。



?
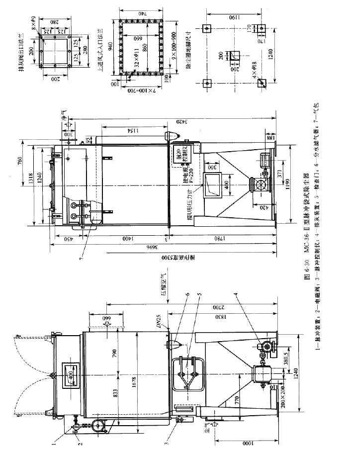
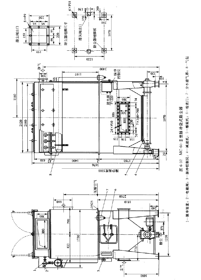
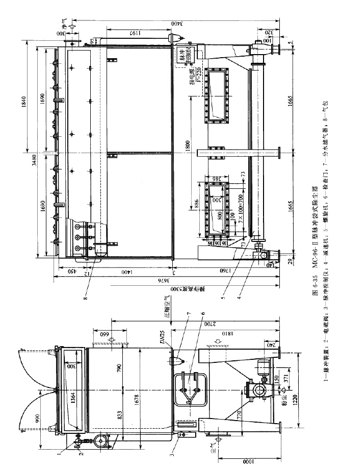
(2) MC-II型脈沖袋式除塵器
MC-II型脈沖袋式除塵器為上揭蓋結構,噴吹系統增設保護罩和改進的蓋板結構,可露 天設置,并有上、下兩種進氣方式,如圖S-27和圖^28所示。其裝配形式見表條36,技術 性能見表6-37,外形和安裝尺寸見圖6-29?圖質量見表6-38,















上一篇:DMC型簡易脈沖袋式除塵器
下一篇:木工旋風除塵器

